服務熱線 :186-6462-0168 / 020-3221-8320
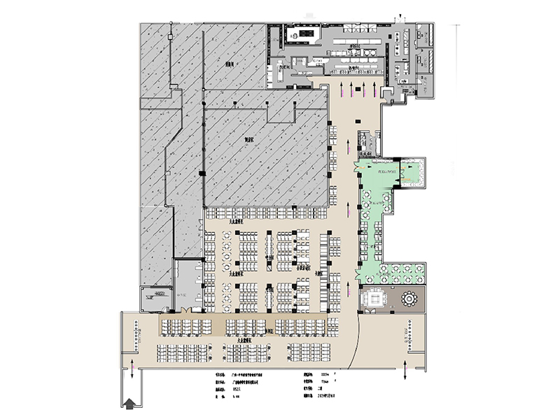
客戶名稱:廣州一中外國語學校食堂
項目地址:廣東省廣州市
工程面積:750㎡
設計理念:大眾就餐區橫向舒展的開放式桌椅布局給予一層空間通透且自由的氛圍,由此顯露出交互的趣味性與工作的靈活性。 大眾就餐區的設計以暖色調為主,以漸變式的柱子做點綴,為空間增加活躍氣息。 休閑區的設計采用明亮地磚做區分,然后在設計中采用綠色營造舒適的氛圍,柔和燈光以及色彩搭配有利于緩解身心疲勞。烹飪區集中了餐品生產制作的主要工作,裝修應符合單位的形象,簡單大氣為主,光線亮麗。 加工區的主要工作內容有:對食品進行分揀,清洗,浸泡,蔬菜類要按一揀、二洗、三切、四浸泡的順序操作等等。
設計裝修效果圖:





